 
																																	 
																																	по Астрахани
от производителей
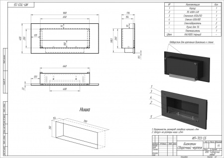
Встраиваемый биокамин / очаг Mercury 900 (SappFire)
Биокамин Mercury 900 SappFire производится из термоустойчивой толстостенной стали. Дополнительно оснащен защитным закаленным стеклом. Биокамин получил пропорциональные размеры и длинную линию огня. Технология окрашивания – порошковая. По сравнению со своим аналогом имеет меньший расход потребления на 15%. Его можно встроить в стену и сэкономить массу жилой площади! Приобрести себе живой огонь так легко и просто, а главное – доступно! Топливный Блок Биокамина Mercury 900 (SappFire) изготовлена из нержавеющей шлифованной стали. Ее обрамляет очаг, поверхность которого покрыта порошковой огнеупорной краской немецкого производства. Такое декоративно-защитное покрытие отличается повышенной устойчивостью и экологичностью. Топливный бак объемом 2,5 литра рассчитан на 5-6 часов непрерывного горения. Линия огня длиной 450 мм создает равномерное пламя, интенсивность которого регулируется в мануальном режиме с помощью специальной задвижки.Габариты
Технические
Для покупки товара в нашем интернет-магазине выберите понравившийся товар и добавьте его в корзину. Далее перейдите в Корзину и нажмите на «Оформить заказ» или «Быстрый заказ».
Когда оформляете быстрый заказ, напишите ФИО, телефон и e-mail. Вам перезвонит менеджер и уточнит условия заказа. По результатам разговора вам придет подтверждение оформления товара на почту или через СМС. Теперь останется только ждать доставки и радоваться новой покупке.
Оформление заказа в стандартном режиме выглядит следующим образом. Заполняете полностью форму по последовательным этапам: адрес, способ доставки, оплаты, данные о себе. Советуем в комментарии к заказу написать информацию, которая поможет курьеру вас найти. Нажмите кнопку «Оформить заказ».
Оплачивайте покупки удобным способом. В интернет-магазине доступно 3 варианта оплаты:
- Наличные при самовывозе или доставке курьером. Специалист свяжется с вами в день доставки, чтобы уточнить время и заранее подготовить сдачу с любой купюры. Вы подписываете товаросопроводительные документы, вносите денежные средства, получаете товар и чек.
- Безналичный расчет при самовывозе или оформлении в интернет-магазине: карты Visa и MasterCard. Чтобы оплатить покупку, система перенаправит вас на сервер системы ASSIST. Здесь нужно ввести номер карты, срок действия и имя держателя.
- Электронные системы при онлайн-заказе: PayPal, WebMoney и Яндекс.Деньги. Для совершения покупки система перенаправит вас на страницу платежного сервиса. Здесь необходимо заполнить форму по инструкции.
Экономьте время на получении заказа. В интернет-магазине доступно 3 варианта доставки:
- Курьерская доставка работает с 9.00 до 19.00. Когда товар поступит на склад, курьерская служба свяжется для уточнения деталей. Специалист предложит выбрать удобное время доставки и уточнит адрес. Осмотрите упаковку на целостность и соответствие указанной комплектации.
- Самовывоз из магазина или склада. Когда заказ поступит на склад, Вам придет уведомление. Мы свяжемся с Вами, уточним время в которое можете приехать.
- Транспортной компанией. Доставим товар в любой город до двери. Заказ можно оплатить при получении.
Самовывоз - 1-2 дня
Доставка курьером - 2-3 дня
Ростов-на-Дону:
Самовывоз - 3-4 дня
Доставка курьером - 4-5 дней
Самовывоз - 4-5 дней
Доставка курьером - 6-7 дней
Воронеж:
Самовывоз - 2 дня
Доставка курьером - 2-3 дня
Самовывоз - 6-7 дней
Доставка курьером -8-9дней
Москва:
Самовывоз - Сегодня
Доставка курьером - 1-2 дня
 
																													



 
                




 
									 
									 
									 
									 
									 
									 
									 
		                         
																			